STAFF BLOGスタッフブログ

Aタイプのファミリールーム、我が家だったらこう使いたい!

みなさんこんにちは😊

本日は、Aタイプの間取りについてご紹介します✨

.

.

.

.

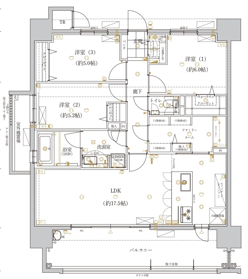
Aタイプは、3LDK+ファミリールーム(FR)付きの間取り。
現在ご案内しているモデルルームはCタイプになるのですが、せっかくなので今回は、

まだ実物をご覧いただけないAタイプの間取り
“暮らしのイメージ”をふくらませながらご紹介してみたいと思います😊

.

.

.

.

間取り図を見ていると、
「このお部屋、どう使おうかな?」
と考える時間も、新築マンションならではの楽しみですよね✨

.

.

.

Aタイプの特徴のひとつが、
このファミリールーム(FR)

.

.

.

ファミリールームと聞くと、
「何に使うお部屋なんだろう?」
「居室とは違うのかな?」
と感じる方もいらっしゃるかもしれません🤔

.

.

.

建築基準法上ではサービスルームという扱いになりますが、暮らしの中では
“家族みんなで使える多目的スペース”として、とても使い勝手のいい空間なんです✨

.

.

.

私だったら、このファミリールームは
衣類の収納+子どものおもちゃスペースとして使いたいなと思っています😊

.

.

.

というのも…我が家には4歳の女の子がいるのですが、
私はとにかくリビングに物を置くのが苦手なタイプでして😂

.

.

.

テーブルの上とかソファー、イス、カウンターとか

インテリア小物以外のものがあるのが気が休まらなくて嫌いなんです(笑)

仕事終わってお迎え言って買い物行って、ようやく家帰って

「よし!ごはんつくるぞー!」

てときに目に見える空間が汚いとなんだか疲れませんか?(私だけ?)

リビングがごちゃっと見える原因って、意外と大きな家具じゃなくて、

・洗濯物を取り込んだあとの衣類
・たたんだ後に「あとで持っていくね」と言われた服
・一時的に置かれたカバンや上着

こういう“ちょい置き”だったりしませんか?💦

.

.

.

「あとで片付けるつもりだったのに、気づいたらそのまま…」

なんてこと、よくありますよね。

.

.

.

我が家でも、
「早く部屋に持っていってよ~!」
なんて言って、ちょっとした夫婦ゲンカに発展することも…(笑)

.

.

.

でも、リビングとは別に
洗濯物を一時的に置ける場所家族それぞれの物をまとめておけるスペースがあれば、
そんなプチストレスも減らせそうだなと感じています😊

.

.

.

さらに、夕ごはんを作っている間などは、
子どもにはひとりで遊んでもらわないといけない時間もありますよね🍳

.

.

.

そうなると、どうしても
おもちゃをリビングに持ってきて遊ぶことになるのですが、
正直なところ…
おもちゃの収納はリビングには置きたくない💗笑

.

.

.

だからこそ、
「おもちゃを広げてOK」
「遊び終わったらそのまま片付けられる」

そんなおもちゃ専用の場所として
ファミリールームがあると、とても助かるなと思います✨

.

.

.

リビングはすっきり保ちたいけど、
暮らしに無理はしたくない。

.

.

.

ファミリールームがあることで、
✔ リビングはくつろぐ場所
✔ ファミリールームは使う場所

と、空間をゆるく分けられるのもAタイプの魅力のひとつです😊

.

.

.

モデルルームはCタイプになりますが、間取り図を見ながら
「ここをこう使ったら便利そう」
「このスペース、意外と使えるかも?」
と想像してみるのも、お部屋選びの大切なポイントです✨

.

.

.

実物がないからこそ、
暮らしをイメージする時間も楽しんでいただけたら嬉しいです💗

.

.

.

みなさんだったら、
このファミリールーム、どんな風に使ってみたいですか?😆

ぜひご自身の暮らしに置き換えて、
イメージをふくらませてみてくださいね😊✨

■ プラネスト大財ザ・ルクス 公式サイト(物件情報・資料請求)
https://planest-otakara.com/index.html

■ 来場予約フォーム
https://trustlife.co.jp/buil_reserve/

■ お問い合わせ先
フリーダイヤル:0120-947-021
営業時間:10:00〜19:00(毎週水曜定休)

コメントを残す

CAPTCHA


一覧に戻る